子育て世代の家族の住まい

Simple No.1

大きな吹抜けが開放感を演出する家

リビングに一歩入ると、
圧倒的な開放感が迎える吹抜けの大空間。
生活感をなくした優雅な寛ぎの場が
家族の自慢になります。

■ベース仕様

  • JRJパネル
  • オール電化
  • エコキュート
  • 食洗機
  • IHヒーター
  • ペニンシュラキッチン
  • ウォークインクローゼット
  • 吹抜け
  • 耐震等級3相当
  • 省令準耐火

■追加オプション仕様

  • 長期優良住宅
  • ZEH省エネ基準
  • 太陽光パネル
  • ウッドデッキ

EXTERIOR

外観CG

※CGパースはイメージです。
※一部オプションを含みます。

INTERIOR

SimpleNo.1

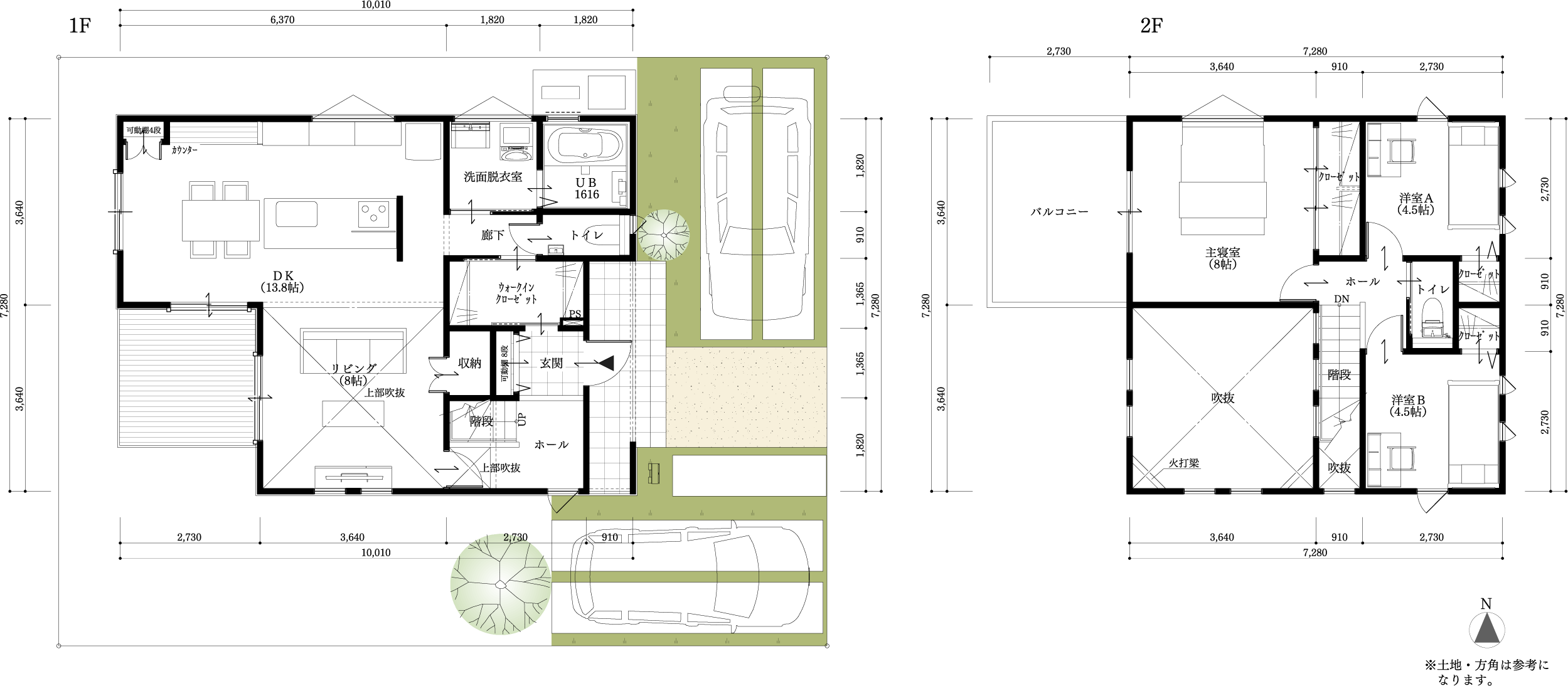
  • 3LDK
  • ■延床面積

    97.71㎡(約29.55坪)

  • ■1階床面積

    58.79㎡(約17.78坪)

  • ■2階床面積

    38.92㎡(約11.77坪)

  • ■参考価格(税込)

    2,510万円

INTERIOR

リビングCG

※CGパースはイメージです。

  • ※参考価格には、外構工事・ウッドデッキ・オプション仕様・家具・家電・登記等の費用は含まれません。
  • ※建築地により、お選びいただいたプランが建築できない場合があります。
    また、給排水管延⻑工事・別途特殊基礎工事・狭小地割増費用等が必要となる場合があります。
  • ※耐震等級3の証明には、別途、住宅性能評価書の取得費用が必要となります。
  • ※住宅建築時には事前に地盤調査を行い必要に応じてお客様のご負担で地盤改良工事を実施いたします。

こちらよりVRをご覧頂けます。

ELEVATION

図面
ページトップへ